Filtervägen 9
Sjöbyttebäck-Iggesund, Iggesund
Rymlig familjevilla med isolerat dubbelgarage, bastu o inglasad altan – lugnt o barnvänligt område
Rymlig familjevilla med isolerat dubbelgarage, bastu och inglasad altan – lugnt och barnvänligt i Iggesund Välkommen till denna välskötta och rymliga villa om sju rum och kök, belägen på en lugn återvändsgata i ett tryggt och barnvänligt område i Iggesund. Här bor du bekvämt med stora sociala ytor, flera eldstäder, bastu med relax samt isolerat dubbelgarage – perfekt för den aktiva familjen! Kort om huset: 7 rok (varav 5 sovrum) med generösa ytor för både familjeliv och umgänge Två kaminer som sprider både värme och trivsel Vattenburet värmesystem i hela huset Stort, renoverat kök med plats för minst 6 personer Inglasad altan i soligt sydostläge Bastu och relaxavdelning i källarplan Rymlig tvättstuga med egen utgång Gott om förvaring Isolerat dubbelgarage om ca 50 kvm Här bor du nära både buss och tåg, vilket ger smidiga pendlingsmöjligheter. Iggesund erbjuder också en välutrustad idrottsanläggning (Camp Igge), fint badhus samt skola upp till årskurs 9 – allt inom bekvämt avstånd. Förskola ligger bara några hundra meter bort. Ett trivsamt och funktionellt hem för dig som söker lugn, yta och närhet till service och fritid! Välkommen att boka visning!
Visningar
-
25oktoberlördagkl 14:00 - 15:00Välkommen boka in dig på visningen!Klicka här för att boka
Fakta
Utgångspris
Fast.beteckning:
Iggesund 14:150
Rum
7 st
Sovrum
5 st
Boarea
121 m²
Biarea
121 m²
Tomtarea
875 m²
Byggnadstyp
1-plansvilla med källare
Byggnadsår
1977
Dokument
Länkar
Fastighetsmäklare Egen företagare
Rum
-
Rumsbeskrivning
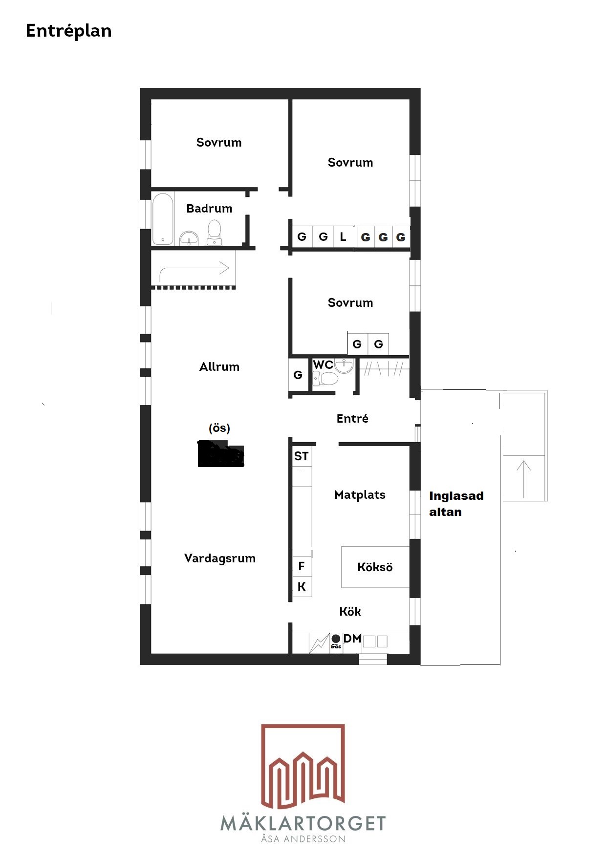
Rymlig hall med god plats för avhängning av kläder. Slitstarkt laminatgolv (Alloc) och tapet. Gästtoalett med wc och handfat. Våtrumsmatta och tapet. Stort renoverat kök från 2009. Utrustat med: tilltagen köksö, hel kyl och frys, induktionshäll, gas platta, varmluftsugn, fläkt och diskmaskin. Slitstarkt laminatgolv (Alloc) och tapet. Från köket når du ett härligt vardagsrum med kamin som delar av rummet med matplats på ena sidan och soffgrupp på den andra. Ekparkett och tapet. Badrum utrustat med: badkar, toalett och tvättställ samt en garderob. Våtrumsmatta och våtrumstapet. Sovrum med hel garderobsvägg. Laminatgolv och tapet. Sovrum med plastmatta och tapet. Sovrum med laminatgolv och tapet. Två garderober. KÄLLARPLAN Mysig gillestuga med insatskamin. Trägolv, trätak och väv på väggarna. Sovrum med trägolv, väv och trätak. Sovrum med trägolv, väv och trätak. Duschrum med bastu och relax. Det finns tvättställ, toalett och vattenburen handdukstork. Klinker på golv med elvärme. Kakel i dusch och övriga väggar har halvpanel och tapet. Tvättstuga med tre garderober och groventré. Ny plastmatta och väv på väggar. Utrustat med: tvättmaskin, torktumlare och tvättho. Stort förråd alternativ hobbyrum. Betonggolv och betongväggar. Förrådsutrymme kombinerat med pannrum och pellets förvaring.
Tomt
Trädgårdstomt.
Välplanerad trädgårdstomt som angränsar skogsparti.
Stor inglasad altan mot sydost.
Planbestämmelser
Byggnadsplan (1976-06-14)
Bilplats
Varmbonat dubbelgarage om ca 50 kvm.Bredband
Bredband.
Ventilation
Mekanisk.
Vatten och avlopp
Kommunalt vatten året om. Kommunalt avlopp.
Energideklaration
Utförd
Utförd: 5/6 2025
Klass
C
Förbrukning
75 kWh/kvm per år
Elektricitet
Nätbolag
Ellevio
Drift per år
Uppvärmning
7 438 kr
Försäkring
5 000 kr
Vatten/avlopp
5 200 kr
Elförbrukning
5 060 kr
Sotning
750 kr
Renhållning
1 785 kr
Summa
25 233 kr
Taxeringsuppgifter
Uppgifterna är preliminära.
Typkod
220, Småhusenhet, bebyggd.
Totalt
1 262 000 kr
Byggnad
1 045 000 kr
Mark
217 000 kr
Skatt/avgift
9 465 kr
Taxeringsår
2024
Värdeår
1977
Pantbrev
Summa
600 500 kr
Antal
3 st
Byggnad
Typ
1-plansvilla med källare
Byggår
1977
Bjälklag
Trä/betong
Fasad
Mexitegel
Grund
Hel källare
Stomme
Trä/betong
Uppvärmning
Vattenburet system med pellets, luftvärmepump samt 2 insatskaminer.
Tak
Betongtegelpannor
Fönster
3-glas
Renoveringar
Köket renoverades 2009. Nybyggnad av inglasad altan 1994. Relax källare 2002 (Jannes Golv) ny våtrumsmatta i tvättstugan 2108.
Övrigt
Separad-styrd värme i 2 plan med 2 separata cirkulationspumpar.
Övriga byggnader
Varmbonat isolerat dubbelgarage om ca 50 kvm
Karta
Planlösning
Planritning
Planritning
Bilder
Välkommen till Filtervägen 9!
Dubbelgarage
Stor inglasad veranda mot sydost
Inglasad veranda vid entrén
Hall mot kök och vardagsrum
Gästtoalett i hall
Renoverat rymligt kök med matplats
Här finns både induktionshäll och gasspis
Vardagsrum med tilltagen matplats
Plats för soffgrupp mot värmande kamin
Sovrum
Stora sovrummet har hel garderobsvägg
Badrum
Sovrum
Gillestuga med kamin
Gillestug mot två av källarplanets sovrum
Sovrum
Sovrum
Badtu med relax
Bastu
Tvättstuga med groventré
Förråd